→ PRODUCTS
ISO 9001:2008 Certified
![]()
|
Home / Products / Flanges / ASME B16.5 Square Flanges Hexion Steel LIMITED. is a company focused on engineering and business activities in the area of environmental technologies. Our Product Supply Division offers a broad portfolio of Steel Flanges and ASME B16.5 Square Flanges. ASME B16.5 Square Flanges
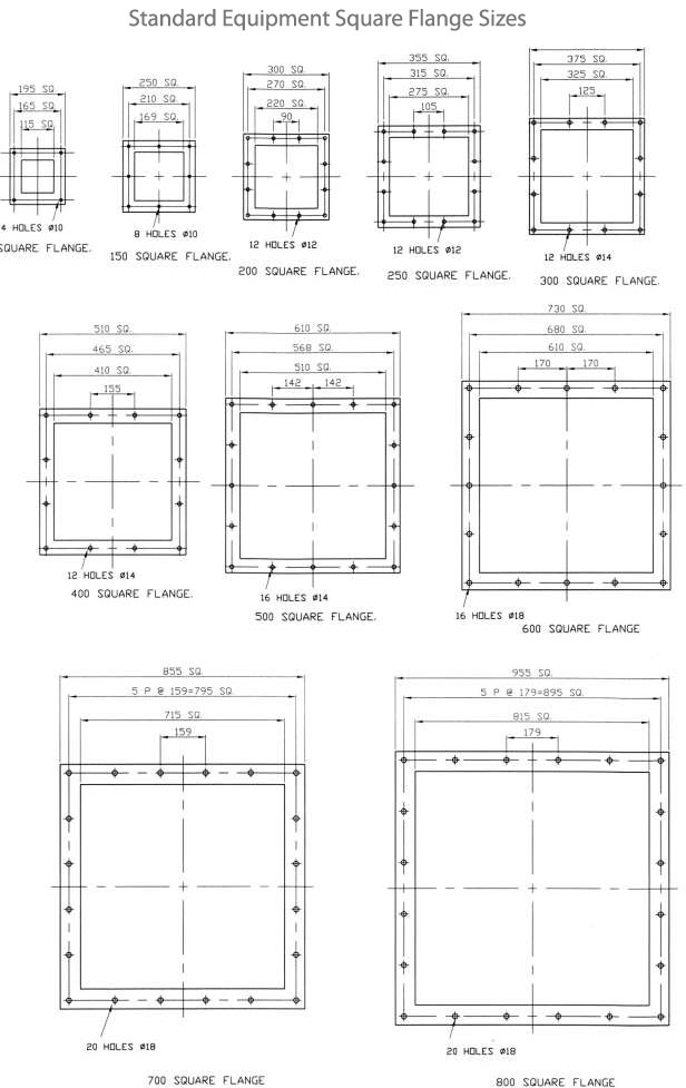
Stainless Steel:ASTM / ASME SA 182 F 304, 304L, 304H, 309H, 310H, 316, 316H, 316L, 316 LN, 317, 317L, 321, 321H, 347, 347 H. Duplex Steel:ASTM / ASME SA 182 F 44, F 45, F51, F 53, F 55, F 60, F 61. Nickel AlloyASTM / ASME SB 564 UNS 2200 (NICKEL 200), UNS 4400 (MONEL 400), UNS 8825 INCONEL (825), UNS 6600 (INCONEL 600), UNS 6601 (INCONEL 601), UNS 6625 (INCONEL 625), UNS 10276 (HASTELLOY C 276) Copper AlloyASTM / ASME SB 61 UNS NO. C 92200 & ASTM / ASME SB 62 UNS NO. C 83600. Carbon SteelASTM / ASME A 105 Alloy SteelASTM / ASME A 182 GR F 5, F 9, F 11, F 12, F 22, F 91 DimensionsStandard Equipment Square Flange Sizes:
Our range includes SHA+SHB (SHAB) Square Flanges and SSA+SSB (SSAB) Square Flanges. Working Pressure for the Square Flanges available is 210 kg/cmª Our range of sizes are from 1/4"NB - 6"NB. Square flange Ø 40 mm pipe aperture Square Flanges Key Features:
NOTE: This flange is referred to as either threaded or screwed. It is used to connect other threaded components in low pressure, non-critical applications. No welding is required. Standards: ANSI, AS2129, JIS, DIN, EN-1092-1, BS10, BS4504 etc Nominal Pressure: PN0.25-PN42, 150LB-900LB, 5K--30K. Nominal Diameter: DN10A-DN600A, NPS:3/8"-24". Square Flanges Materials: Carbon steel, stainless steel and alloy steel. Printing: Carbon steel and alloy steel with yellow print, black print, oil or zinc. Square Flanges Packing: Plywooden case. Payment terms: both L/C at sight and T/T before shipment. * We can also manufacture special application flanges and forgings that customers require. Square Flanges Dimensions Square Flanges ANSI B16.5 Main Export Market
|
|
|
||||||||||||||||||||||||




